Peach King Centre Expansion and Renovation Project
Grand Opening - January 24th 2026
๐ Save the Date, Grimsby! ๐
The Peach King Centre will complete its expansion and renovation by the end of this year. After staff move-in and final preparations, the facility will fully open as the Major Refrigeration Peach King Centre (MRPKC) on Saturday, January 24, 2026.
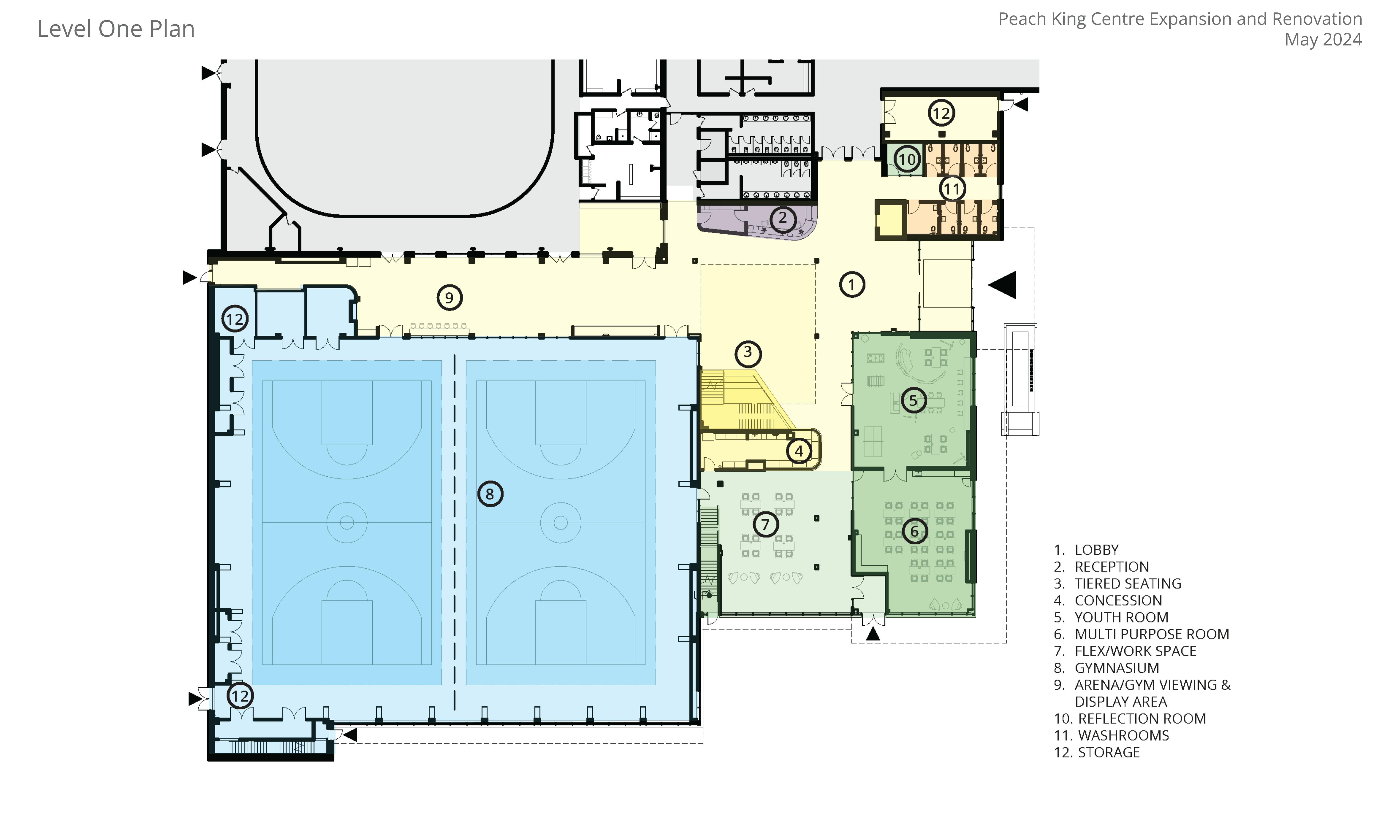
The renewed and expanded facility features brand-new spaces including a double gymnasium, walking track, multi-use rooms, a fitness studio, and significant upgrades throughout, supporting a modern, multi-use community hub for residents of all ages.
๐ Grand Opening highlights: ribbon-cutting, tours, family activities, program demos, Fitness Centre and Studio demos, giveaways and more.
Full event details coming in December.
Background
In 2019, a citizen-driven Parks, Recreation and Culture Master Plan identified the need to improve opportunities for community recreation and access to indoor facility space in Grimsby. To achieve this, one of the top recommendations was to work towards a multi-use recreation facility on the Peach King Centre Grounds.
In late August 2019, federal and provincial funding opportunities were announced and Council approved an expedited preparation of a concept plan for a Peach King Centre Expansion. In 2021, the project was selected for approval through the Ontario Government's Strategic Priorities Infrastructure Fund (SPIF), with the province contributing a grant of $16 million towards the total project cost.
Moving from the original concept in 2019 to 2023, there has been an unprecedented increase in both the cost of construction and the overall local demand for recreation space. In response to these two pressures, Council has approved an updated project budget of $36.7 Million that includes expanded project components such as a double gymnasium, fitness studio, expanded lobbies, and select green building initiatives. The comprehensive list of project components is detailed below.
Project Components
The proposed project includes a mix of renovation and expansion items for the existing Peach King Centre. The two ice pads at the Peach King Centre will remain with the following items planned for the project.
- A double gymnasium (dividable)
- A second-floor indoor walking track (above gymnasium)
- Multi-use community rooms
- Fitness Centre
- Fitness Studio
- Youth Centre
- Reflection Room
- Concession
- West Pad Dressing Room improvements
- Parking improvements
Construction
Aquicon Construction was retained in September 2023 to act as the project's construction manager. Construction windows are estimated as follows:
- May 1 2024 - The Peach King Centre (PKC) closes to the public to prepare for construction.
- May 1 - 12 2024 - The building is opened as needed to accommodate ice bookings only (evenings and weekends).
- Fitness Centre and Raquetball courts are fully closed.
- Customer Service Desk relocates to the Livingston Activity Centre.
- May 13 2024 - PKC is fully closed and construction commences.
- September 2024 - PKC opens for ice-only operations while construction continues.
- April 1 2025 - Ice is removed and PKC is fully closed to the public. Construction continues.
- September 2025 - The PKC reopens to begin the 2025/2026 ice season while construction continues
- Early January 2026 - Construction is complete and the fully finished facility opens.
Get Involved
As the project moves forward, there will be opportunities for residents and community groups to provide feedback. Stay Informed by clicking the "Subscribe" button on this page and following the Town of Grimsby on Facebook, Instagram and Twitter.











